益阳保利时光印象
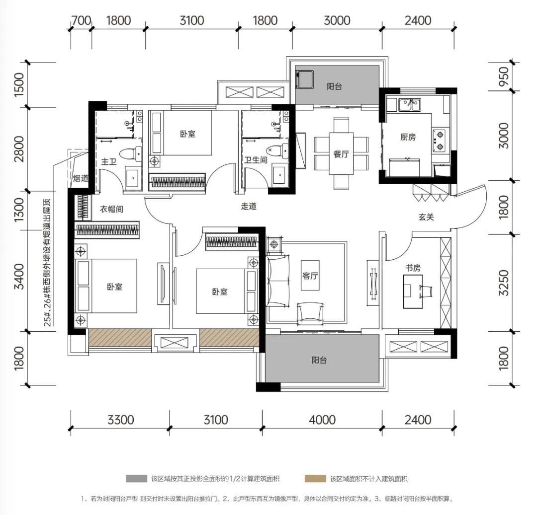
主力户型
查看全部楼盘介绍
益阳保利时光印象项目位于益阳市迎宾东路与蓉园路交汇处往南400米,占地面积13.3万方,规划住户:2700户、停车位:3357个;周边临近湖南城市学院、益阳医专等。
世界500强——央企保利,深耕长沙20余载。 保利是世界500强**72位大型央企,中国房地产领军品牌,业内综合实力TOP4,品质豪宅代名词。 项目位于益阳市高新区的**腹地,长株潭融城的桥头堡,湖南“3+5”城市群的几何枢纽,南接长沙,是益阳**拿得出手的城市名片。品牌房企集中在片区开发建设,加快城市拓展进程。目前整个益阳的重点都放在了益阳的东部,坐享城市规划发展的**区和红利区,区域优势**,未来发展前景和**空间潜力**。
周边设施
万达广场、海洋城、大学城商圈
小学:紫竹小学 梓山湖学校
中学:平高中学 箴言中学
大学:城市学院 益阳医专





