汉寿公园世家
汉寿公园世家
-
均价
房贷计算器 5600元/㎡
报价时间:2025-11-06,价格有效期:28天 该价格为参考价格,实际价格以开发商为准!
- 开盘时间
- 楼盘地址:
- 产权年限:
- 车位情况:
- 计划户数:
- 占地面积:
- 建筑面积:
订阅消息将通过短信及推送等形式通知您
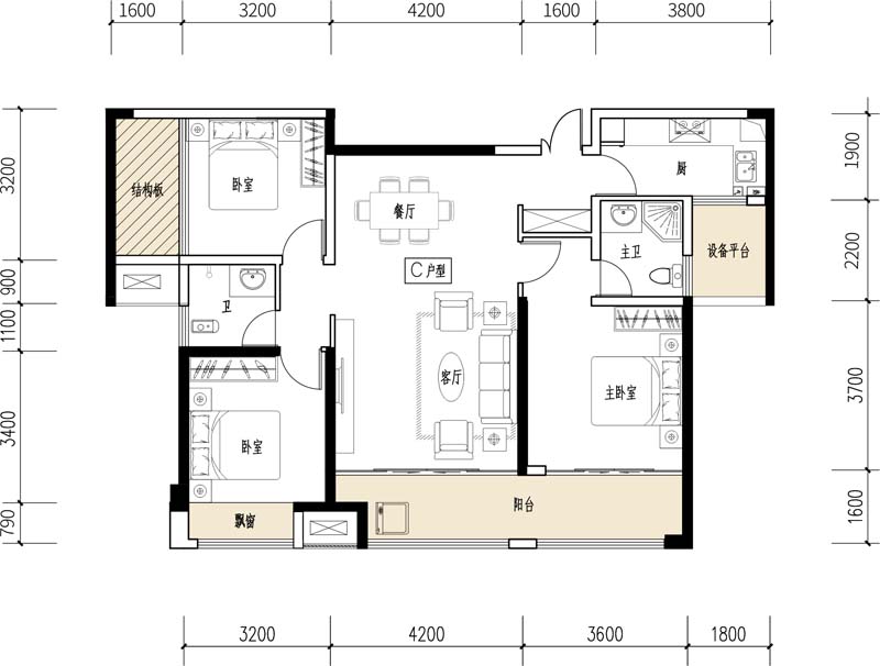
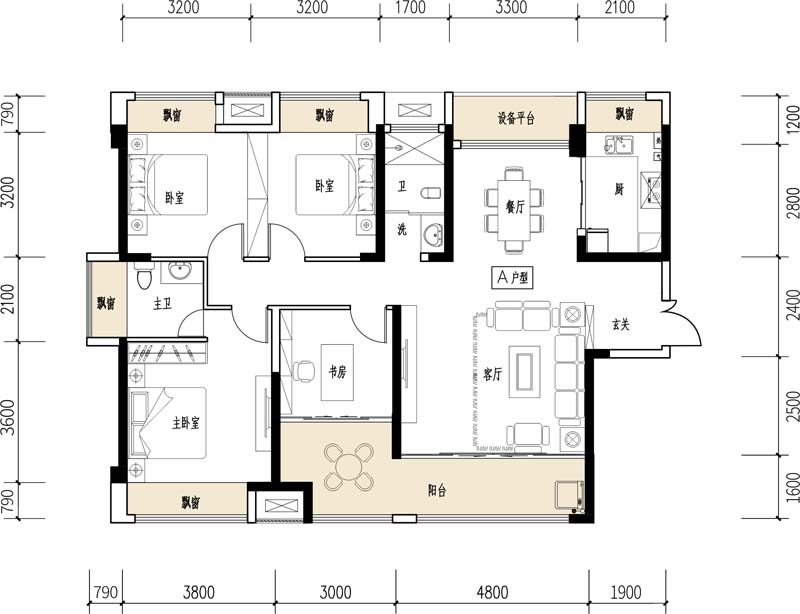
主力户型
查看全部楼盘动态(2)
查看全部位置周边
公交
教育
医疗
购物
生活
娱乐
楼盘介绍
汉寿欢乐城公园世家位于汉寿县芙蓉中路龙珠湖公园正对面,三湖、三公园中轴线上。集滨水主题乐园、购物**、滨水商业街、湖景住宅、水岸东方院墅于一城,成就一站式滨水都市生活**。公园世家——新中式升级之作,著作汉寿**的高舒适度墅景高层和空中叠墅;厅庭院园,复兴归家礼序;匠心智造六大智能系统,定义汉寿高端人居想象。








